Guindastes | Guindautos | Transportes especiais
Conheça a Empremon

Container Marítimo

Modelo
MT 605

Indicado para aplicação em

Banheiro
Canteiro de obra
Eventos
Todos os modelos



ModeloMT 605
TipoLinha Marítima
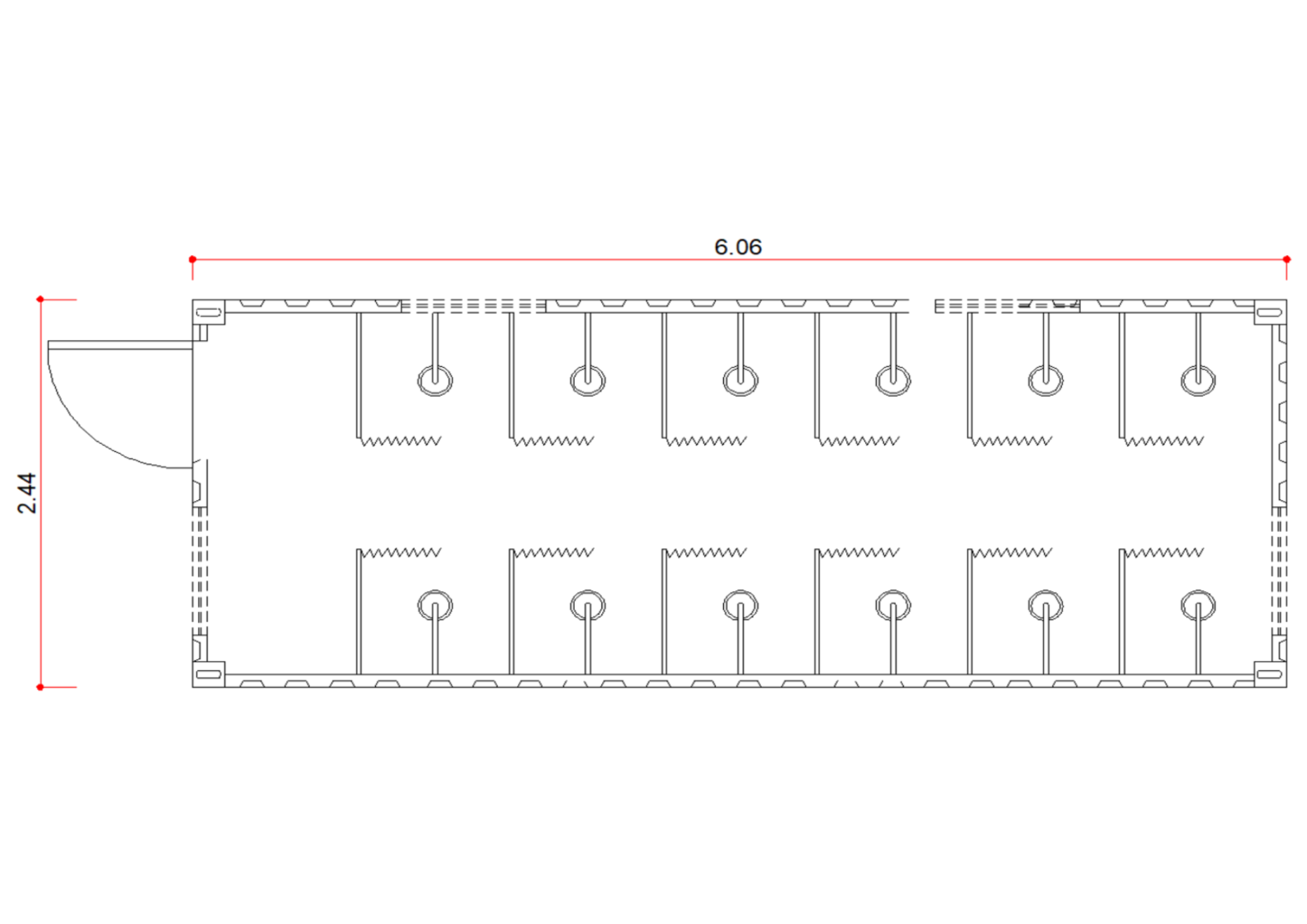
DimensõesComprimento6,06m
Largura2,44m
Altura2,57m
Área14,7864m²
Isolamento TérmicoNãoBandeja para Ar Condicionado de JanelaNão
BanheiroSim
Porta Dupla FuncionalNãoAcoplávelNão
Instalações ElétricasSimPiso PintadoNão
Instalações HidrosanitáriasSimPiso em Manta VinílicaNão
Instalações LógicasNãoPiso em Grão de ArrozSim
Características

Container Marítimo medindo 6,06 x 2,44 x 2,57m (C x L x Aext.), contendo 01 porta externa com fechadura adaptada para cadeado (item não fornecido), 04 janelas basculantes laterais, 06 portas internas, 06 vasos sanitários, 06 papeleiras, 02 pias lavatórias plásticas, 02 mictórios, instalação elétrica (01 interruptor conjugado, 04 bocais sem lâmpadas e 01 quadro elétrico) e piso em manta vinílica ou grão de arroz.